1с-8-2ЭД
| Общие сведения | ||
|---|---|---|
| Тип машины: | Клапаны запорные типа 1с | |
| SUBTYPE: | На средние параметры | |
| Рабочая среда: | вода-пар | |
| Диаметр, DN: | 80 | мм |
| Описание для 1с-8-2ЭД |
|---|
| Запорные клапаны предназначены для полного перекрытия потока среды и снабжены запорным органом. Во время работы должны быть либо полностью открыты, либо полностью закрыты. Запорные клапаны всегда односедельные. |
| Характеристики | ||
|---|---|---|
| Диаметр, DN: | 80 | мм |
| Температура: | 450 | °C |
| Коэф. сопр. ξ: | 6.4 | |
| Мкр?: | 290 | |
| Кол-во оборотов: | 12.5 | |
| Рабочий ход: | 75 | мм |
| Давление, PN: | 10 | МПа |
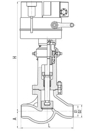
| Размеры | ||
|---|---|---|
| Высота (H): | 830 | мм |
| D2: | 90 | мм |
| D1: | 77 | мм |
| Длина (L): | 380 | мм |
| A: | 89 | мм |
| Масса: | 71 | кг |
| Масса с приводом: | 124 | кг |
| Привод | ||
|---|---|---|
| Способ управления: | Э | |
| Тип привода: | AUMA SA 14.6-F14-C38 | |
| Мощность привода: | 0.8 | кВт |
| Время полного хода: | 34.1 | с |
| Габаритный чертёж 1с-8-2ЭД * |
|---|
|
help_oprosnik